0
Retour

L'Aigle (61300)
MAISON EN PIERRES L'AIGLE

Prix
du bien
296 000 €
réf : 1213

01
Général

L'Etoile immobilier, vous propose de découvrir cette confortable maison restaurée, située à 7 kms de L'AIGLE, ville avec tous commerces, gare SNCF et écoles.

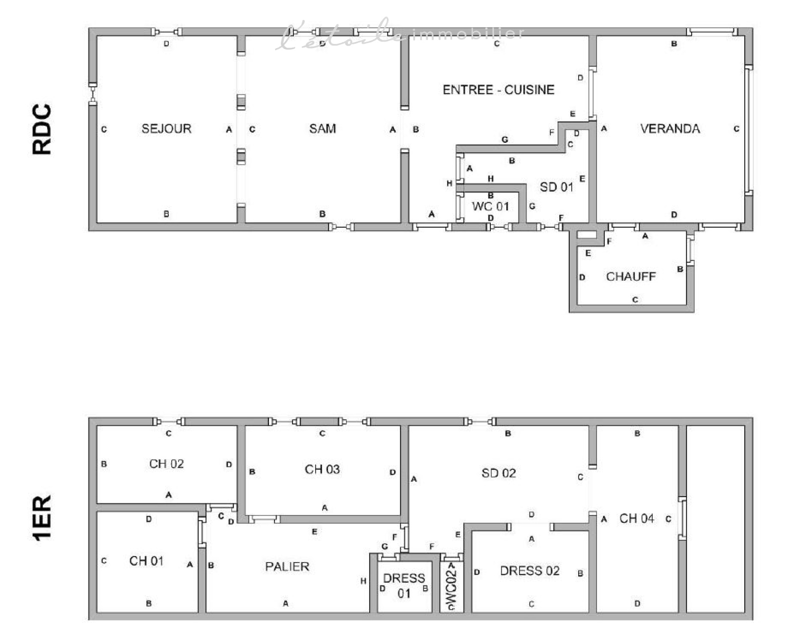
Au rez-de-chaussée : entrée ouverte sur cuisine aménagée et équipée (plaque, hotte, four, lave-vaisselle, réfrigérateur), salle d'eau, WC, salle à manger lumineuse avec vue sur la mare et pièce de séjour de 47 m² avec cheminée ; à l'étage : palier desservant un bureau, deux chambres, un dressing, un WC et une chambre avec salle d'eau et dressing privatif.

Chauffage par pompe à chaleur AIR/EAU. Chauffe-eau thermodynamique. Assainissement par microstation.

Nombreuses dépendances : chenil, double garage, bûcher, chalet, préau, cave, garage pour camping-car et voiture avec mezzanine.

Le tout sur 4687 m² de terrain arboré agrémenté d'une belle mare.


Les informations sur les risques auxquels ce bien est exposé sont disponibles sur le site Géorisques

02
Plus d'infos

  • Code postal
    61300
  • Surface habitable (m²)
    145,90 m²
  • surface terrain
    4 687 m²
  • Nombre de chambre(s)
    3
  • Nombre de pièces
    6
  • Nombre de niveaux
    2
  • Vue
    Jardin et mare

03
Financier

  • Prix de vente honoraires TTC inclus
    296 000 €
  • Prix de vente honoraires TTC exclus
    281 000 €
  • Honoraires TTC à la charge acquéreur
    5,34 %
  • Taxe foncière annuelle
    1 547 €

04
Plus de détails

  • Nb de salle d'eau
    2
  • Cuisine
    Séparée
  • Type de cuisine
    Equipée
  • Mode de chauffage
    Pompe à chaleur, Bois
  • Type de chauffage
    TRAD_TYPE_CHAUFF_AIR_EAU, Cheminée
  • Format de chauffage
    Central, Individuel
  • Terrasse
    OUI
  • Nombre de garage
    4
  • Nombre de parking
    4
  • Exposition
    Sud-Ouest
  • Terrain piscinable
    OUI
  • Terrain arboré
    OUI

05
Copropriété

  • Copropriété
    NON

06
Bilan énergétique

DPE GES
Nos outils

Plus d'informations sur
le quartier

  • Commerces et santé
  • Loisirs
  • Ecoles
  • Transports
  • Pratique

Ce bien
m'intéresse